HERE+NOW

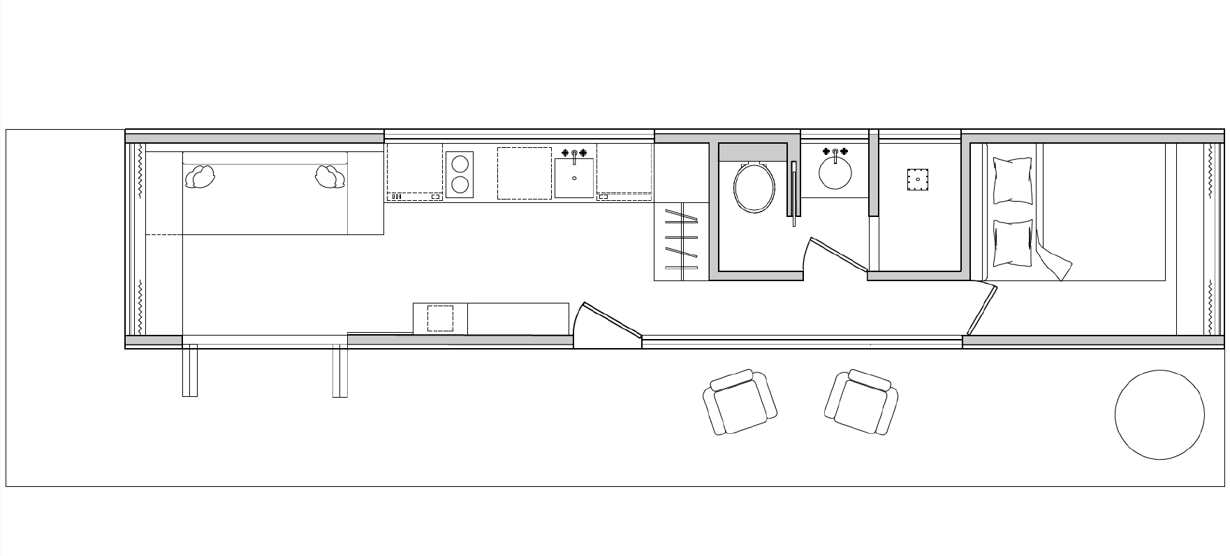
The vision of here&now is to transform a container into a zen space that feels like a luxurious wellness retreat from the moment guests step inside. Guests will be encouraged to leave their electronics at the door for the duration of their stay, to truly connect with the experience. The space will exude calm, peace, and stillness through its layout, design, lighting, and furniture, all while being optimized to support a range of wellness practices year-round. The experience aims to invigorate guests' overall experiences through sight, sound, taste, smell, and touch.

This wellness retreat is designed to be crafted and powered with minimal disruption to the land, energy sources, and community, with sustainability playing a pivotal role in the concept. Overtime, the focus will also expand to making housing a more affordable reality, aiming for proceeds to contribute to communities most in need.